Mortgage and Property Plus

Semi 4, Mount Bernard Rise, Strabane Road, Castlederg

3 Bed Semi-detached House For Sale

Sale Agreed From £195,000 to £204,950

Print additional images & map (disable to save ink)

Photo 1 of Semi 4, Mount Bernard Rise, Strabane Road, Castlederg

Telephone:

028 8224 6538

View Online:

www.mortgageandpropertyplus.com/670176
Next Release Monday 9th December 2024 @ 9am

Key Information

Address Semi 4, Mount Bernard Rise, Strabane Road, Castlederg
Price Prices from £195,000
Style Semi-detached House
Bedrooms 3
Receptions 2
Bathrooms 2
Heating Oil
Status Sale Agreed

Features

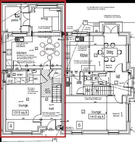
  • Circa 1,300 Sq Ft
  • 3 Bedrooms
  • Master Bedroom with En-Suite and Walk-in Wardrobe
  • Spacious Kitchen / Diner / Snug
  • Utility Room
  • Downstairs WC
  • Full Turnkey Specification

Property Units

Unit Name Price Size
Site 53 Castlederg Sale Agreed 1,315 sq. feet
Site 54 Castlederg Sale Agreed 1,315 sq. feet
Site 57 Castlederg Sale Agreed 1,315 sq. feet
Site 58 Castlederg Sale Agreed 1,315 sq. feet
Site 59 Castlederg Sale Agreed 1,315 sq. feet
Site 60 Castlederg Sale Agreed 1,315 sq. feet
  • Mortgage and Property Plus

    Mortgage and Property Plus

    028 8224 6538

Photo Gallery

Photo 1 of Semi 4, Mount Bernard Rise, Strabane Road, Castlederg Floorplan 1 of Semi 4, Mount Bernard Rise, Strabane Road, Castlederg Floorplan 2 of Semi 4, Mount Bernard Rise, Strabane Road, Castlederg

Visit www.mortgageandpropertyplus.com for further details.