Detached Two Storey Property With Garage, Corradinna Lane, Clanabogan, Omagh BT78 5FG

4 Bed Detached House with garage For Sale

Price £339,500

Print additional images & map (disable to save ink)

Photo 1 of Detached Two Storey Property With Garage, Corradinna Lane, Clanabogan, Omagh

View Online:

www.mortgageandpropertyplus.com/977171

Key Information

Address Detached Two Storey Property With Garage, Corradinna Lane, Clanabogan, Omagh
Price £339,500
Style Detached House with garage
Bedrooms 4
Receptions 2
Bathrooms 2
Heating Oil
Size 2,250 sq. feet
Status For sale

Property Units

Unit Name Price Size
Site 4 Corradinna Lane £339,500 2,250 sq. feet

Additional Information

These Superb properties are situated within a small development which will consist of 8 detached houses, situated in a picturesque countryside location approximately 3 miles from Omagh. The properties will be finished to an extremely high standard Turn-Key Finish and are further enhanced by their spacious sites and popular location making them ideal Family Homes.

• Detached Two Storey Property - Circa 2250 sqft
• 4 Bedrooms
• 2 Reception Rooms
• Fitted Kitchen with choice of doors and worktops
• Fitted White Modern Sanitary Ware
• Fitted Stoves 
• Skirtings and Architraves painted with oak internal doors
• Generous Garden
• Boundary Fencing
• Master Bedroom with En-Suite & Walk-in Wardrobe
• Open Plan Kitchen/Diner
• Oil Fired Central Heating 
• Double Glazed Windows & Doors

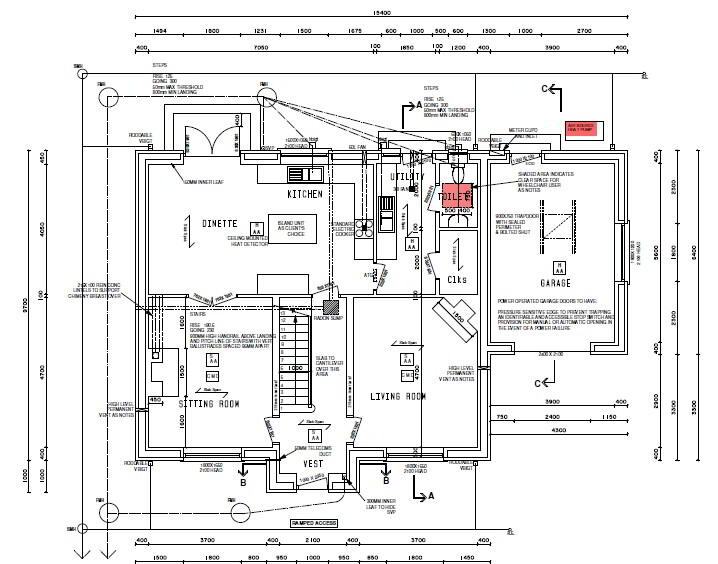
GROUND FLOOR

Hallway 4.70 m x 2.00 m
Living Room 4.70 m x 4.00 m
Sitting Room 5.70 m x 4.00 m
Kitchen/Dinette 6.95 m x 4.10 m
Utility 4.10 m x 1.85 m
W/C 2.00 m x 1.20 m
Cloaks 2.00 m x 1.20 m


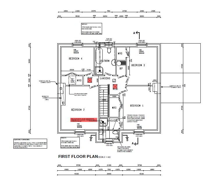
FIRST FLOOR

Bedroom 1 4.00 m x 3.80 m
Bedroom 1 En-suite 1.80 m x 1.80 m
Bedroom 1 Walk-in Wardrobe 2.10 m x 1.80 m
Bedroom 2 4.00 m x 3.80 m
Bedroom 3 4.10 m x 3.50 m
Bedroom 3 Walk-in Wardrobe 1.73 m x 0.80 m
Bedroom 4 4.10 m x 3.15 m
Bedroom 4 Walk-in Wardrobe 1.40 m x 1.00 m
Bathroom 3.00 m x 2.25 m
Hot-press 1.50 m x 1.00 m
Landing 5.80 m x 2.00 m
Garage (internal Floor Area) 5.40 m x 2.00 m

SAP Rating: B86 - SAP Reference: 2437-02-13

  • Mortgage and Property Plus

    028 8224 6538

  • Corra Contracts Limited

Photo Gallery

Photo 1 of Detached Two Storey Property With Garage, Corradinna Lane, Clanabogan, Omagh Photo 2 of Detached Two Storey Property With Garage, Corradinna Lane, Clanabogan, Omagh Photo 3 of Detached Two Storey Property With Garage, Corradinna Lane, Clanabogan, Omagh Photo 4 of Detached Two Storey Property With Garage, Corradinna Lane, Clanabogan, Omagh Photo 5 of Detached Two Storey Property With Garage, Corradinna Lane, Clanabogan, Omagh Photo 6 of Detached Two Storey Property With Garage, Corradinna Lane, Clanabogan, Omagh Photo 7 of Detached Two Storey Property With Garage, Corradinna Lane, Clanabogan, Omagh Photo 8 of Detached Two Storey Property With Garage, Corradinna Lane, Clanabogan, Omagh Photo 9 of Detached Two Storey Property With Garage, Corradinna Lane, Clanabogan, Omagh Photo 10 of Detached Two Storey Property With Garage, Corradinna Lane, Clanabogan, Omagh Photo 11 of Detached Two Storey Property With Garage, Corradinna Lane, Clanabogan, Omagh Photo 12 of Detached Two Storey Property With Garage, Corradinna Lane, Clanabogan, Omagh Photo 13 of Detached Two Storey Property With Garage, Corradinna Lane, Clanabogan, Omagh Photo 14 of Detached Two Storey Property With Garage, Corradinna Lane, Clanabogan, Omagh Photo 15 of Detached Two Storey Property With Garage, Corradinna Lane, Clanabogan, Omagh Photo 16 of Detached Two Storey Property With Garage, Corradinna Lane, Clanabogan, Omagh Photo 17 of Detached Two Storey Property With Garage, Corradinna Lane, Clanabogan, Omagh Photo 18 of Detached Two Storey Property With Garage, Corradinna Lane, Clanabogan, Omagh Photo 19 of Detached Two Storey Property With Garage, Corradinna Lane, Clanabogan, Omagh Photo 20 of Detached Two Storey Property With Garage, Corradinna Lane, Clanabogan, Omagh Photo 21 of Detached Two Storey Property With Garage, Corradinna Lane, Clanabogan, Omagh Photo 22 of Detached Two Storey Property With Garage, Corradinna Lane, Clanabogan, Omagh Photo 23 of Detached Two Storey Property With Garage, Corradinna Lane, Clanabogan, Omagh Floorplan 1 of Detached Two Storey Property With Garage, Corradinna Lane, Clanabogan, Omagh Floorplan 2 of Detached Two Storey Property With Garage, Corradinna Lane, Clanabogan, Omagh

Visit www.mortgageandpropertyplus.com for further details.